Você sabe fazer a correta divisão de circuitos elétricos em uma residência?
Imagina aquela situação, onde você esta assistindo o futebol, sua filha está no secador, seu filho no computador, sua mulher na cozinha, e de repente a rede elétrica da sua casa cai.
Em instalações elétricas, situações desagradáveis como as descritas acima estão muito diretamente relacionadas com a má divisão ou dimensionamento dos circuitos elétricos.
Neste artigo, vamos abordar um tema muito importante para nossa segurança, muito importante para projetistas, e pouco levado em conta por alguns eletricistas e donos de residências.
Portanto, se você quer aprender como fazer a correta divisão de circuitos elétricos residenciais passo a passo, de acordo com os critérios estabelecidos pela norma NBR 5410, então, continue lendo esse artigo.
O que é divisão de circuitos elétricos e porque fazer isso em uma residência

Toda instalação elétrica residencial, deve ser dividida em circuitos separados.
O objetivo é dividir as cargas de toda a instalação de forma bem distribuída em circuitos separados, evitando problemas de sobrecarga ou queda de tensão.
Nenhum cliente deseja ter que desligar toda a instalação elétrica apenas para trocar uma tomada ou uma lâmpada.
Ou não poder assistir sua televisão nova, porque o disjuntor desliga o circuito elétrico toda vez que ela é ligada.
Para o correto funcionamento de uma instalação residencial muitos cuidados devem ser tomados, desde o cumprimento de normas, e o correto dimensionamento de componentes.
Além disso, a escolha adequada de interruptores, cabos, tomadas, lâmpadas, representam um ponto muito importante para a distribuição dos circuitos da instalação.
Porque devemos dividir a instalação elétrica
Uma boa parte das residências no brasil, não possuem uma correta distribuição adequada dos circuitos elétricos, em alguns casos podendo causar até incêndios ou curto circuitos.
Isso acontece, porque o cliente querer economizar na parte elétrica, não conhece os riscos e acaba ignorando a realização de um projeto elétrico.
Alguns eletricistas dizem que sabem fazer toda a parte elétrica, e direcionam o cliente por um caminho mais conveniente, uma instalação simples, sem qualquer previsão de cargas.
Em muitos casos, nem o dono da residência compreende corretamente sobre o assunto, e apenas confia na experiência do eletricista.
Mas o que diz a norma sobre a divisão da instalação em vários circuitos
Segundo a norma NBR 5410 para instalações elétricas de baixa tensão, no artigo 4.2.5.2, estabelece que a divisão da instalação em circuitos deve ser de modo a atender, entre outras, às seguintes exigências:
- Segurança: Por exemplo, evitando que a falha em um circuito prive de alimentação toda uma área;
- Conservação de energia: Por exemplo, possibilitando que cargas de iluminação e/ou de climatização sejam acionadas na justa medida das necessidades;
- Funcionais: Por exemplo, viabilizando a criação de diferentes ambientes, como os necessários em auditórios, salas de reuniões, espaços de demonstração, recintos de lazer, etc.;
- De produção: Por exemplo, minimizando as paralisações resultantes de uma ocorrência;
- De manutenção: Por exemplo, facilitando ou possibilitando ações de inspeção e de reparo.
Quais seriam as principais vantagens da divisão de circuitos elétricos em uma residência
Quando dividimos a instalação elétrica, consequentemente a corrente elétrica nominal que circularam por esse circuito será menor.
Isso irá proporcionar condutores mais baratos, e até dispositivos de proteção de menor seção e capacidade nominal.
Possuir uma correta divisão de circuito, garante que uma instalação seja mais segura e que não haja desperdício de energia elétrica, e livre de queda de tensão.
Também evitar problemas de funcionamento inadequado com dispositivos de proteção, onde em um circuito mal dimensionado.
Neste caso, os disjuntores pode desarmar com frequência provocando desligamento constante da energia elétrica.
Ajudar principalmente na realização de uma manutenção, neste caso, o eletricista pode localizar mais facilmente a falha na instalação e corrigir o ponto defeituoso.
Uma correta divisão dos circuitos também facilita a passagem dos condutores nos eletrodutos, respeitando o limite imposto pela norma e as ligações dos mesmos aos terminais dos aparelhos de utilização como interruptores, tomadas e aparelhos.
Como fazer a divisão de circuitos elétricos passo a passo
A instalação elétrica de uma residência deve ser dividida em tantos circuitos quantos necessários, conforme as recomendações da norma ABNT NBR 5410.
Os circuitos terminais devem ser individualizados pela função dos equipamentos de utilização que alimentam.
Mais especificamente, na seção 4.2.5.5 que diz respeito a divisão da instalação, a norma diz que devem ser previstos circuitos terminais distintos para iluminação e tomadas.
Ou seja, não se deve misturar em um mesmo circuito, pontos de iluminação com pontos de tomada, portanto já teríamos aqui, no mínimo dois circuitos: iluminação e tomadas.
Mas o que seria um circuito elétrico na residência?
Um circuito elétrico residencial é o conjunto de pontos de consumo (pontos de luz e tomadas), alimentados pelos mesmos condutores e ligados ao mesmo dispositivo de proteção.
A energia elétrica é recebida através da rede da concessionária de energia, e levada do medidor (ponto de entrega) até o quadro de distribuição, mais conhecido como quadro de luz.
Em uma instalação elétrica residencial, os circuitos começam a partir do quadro de distribuição, e finalizam nos pontos de tomadas, iluminação e as demais cargas.
Uma instalação elétrica é composta por vários circuitos elétricos, sendo eles circuitos de iluminação, de tomadas e tomadas de uso específicas.
Estes circuitos são constituídos basicamente de elementos como fontes, condutores, dispositivos de proteção, dispositivos de comando (interruptores) e a carga do circuito.
Quando o circuito elétrico alimenta diretamente os equipamentos de utilização específicos como chuveiro elétrico, ar condicionado, lâmpadas ou tomadas de corrente de uso geral é chamado de circuito terminal.
Levantamento de cargas e divisão da instalação elétrica
A quantidade de circuitos de uma instalação elétrica depende, entre outros fatores, de sua potência instalada e da potência unitária das cargas a serem alimentadas.
Além disso, há alguns critérios a serem adotados na distribuição dos pontos, e o grau de flexibilidade da instalação futuras necessidades.
Por isso, para realizar a divisão de circuitos elétricos, é necessário primeiro, fazer o levantamento das potências de nossa residência atribuindo potências a todos os pontos terminais.
Por isso, eu criei um artigo, onde eu cito passo a passo como atribuir potências aos circuitos, para saber mais, clique no link e saiba o passo a passo.
Agora, nós Iremos citar os pontos da norma para divisão de circuitos elétricos e a maneira como eles devem ser feitos.
O que diz a norma sobre a divisão de circuitos elétricos
No item 9.5.3.1 da norma, diz que todo ponto de utilização previsto para alimentar, de modo exclusivo ou virtualmente dedicado, equipamento com corrente nominal superior a 10 A deve constituir um circuito independente.
No item 9.5.3.2, faz referência aos pontos de tomada de cozinhas, copas, copas-cozinhas, áreas de serviço, lavanderias e locais análogos, os quais devem ser atendidos por circuitos exclusivamente destinados à alimentação de tomadas desses locais.
No item 9.5.3.3 diz que, em locais de habitação, admite-se, como exceção à regra geral de 4.2.5.5, que determina que os circuitos de iluminação devem ser separados dos circuitos de pontos de tomadas e dos circuitos independentes.
Exceto aqueles indicados em 9.5.3.2, e pontos de iluminação possam ser alimentados por circuito comum, desde que as seguintes condições sejam simultaneamente atendidas:
a) A corrente de projeto (IB) do circuito comum (iluminação mais tomadas) não deve ser superior a 16 A.
b) Os pontos de iluminação não sejam alimentados, em sua totalidade, por um só circuito, caso esse circuito seja comum (iluminação mais tomadas).
c) Os pontos de tomadas, já excluídos os indicados em 9.5.3.2, não sejam alimentados, em sua totalidade, por um só circuito, caso esse circuito seja comum (iluminação mais tomadas).
Além desses critérios, o projetista precisa considerar também as dificuldades referentes à execução da instalação.
Por exemplo, se o fornecimento do projeto for bifásico, a tensão entre os circuitos deve ser melhor distribuída.
Os circuitos de iluminação e de pontos de tomada serão ligados na menor tensão (127 Volts), entre fase e neutro.
E os circuitos independentes serão ligados na maior tensão (220 Volts), entre fase e fase, assim a corrente elétrica que passará por eles será menor.
Preparando o Quadro de Distribuição da instalação elétrica
Na verdade, quando falamos de divisão de circuitos, estamos falando do dimensionamento do quadro de distribuição.
A divisão de uma determinada instalação elétrica em circuitos elétricos pode ser resumida pelo preenchimento de uma quadro, conhecido como quadro de distribuição de circuitos.
Após o levantamento das cargas, realizamos o preenchimento do quadro de distribuição da instalação com todas as potências atribuídas e com a divisão dos circuitos.
O quadro de distribuição de uma instalação elétrica é composto pelos seguintes campos, número e tipo de circuito, tensão de alimentação, local e potência nominal das correntes de projeto e corrigida, o dimensionamento dos condutores e das proteções, e a distribuição das cargas por fases.
E é assim que deve ser apreendido o exemplo abaixo, no qual discorreremos acerca do dimensionamento de um quadro de distribuição, conforme o exemplo que será abordado no próximo passo em uma residência modelo.
Aplicando um exemplo da divisão de circuitos elétricos em uma instalação residencial
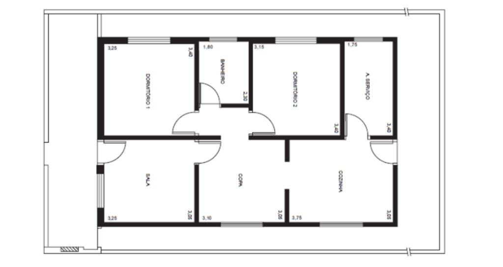
Para que possamos aprender a correta divisão de circuitos elétricos, iremos abordar o exemplo de uma planta baixa e os equipamentos previstos nessa residência.
A planta é baseada no exemplo abordado no manual de instalações elétricas residenciais, e publicado pela Prysmian em 2006, de acordo com a norma NBR 5410 de 2004.
Nossa planta é um residência simples, e possui possui cerca de 65 m2, com dois dormitórios, uma sala, copa, cozinha, área de serviço, e banheiro com todas as dimensões representadas.
Nossa residência também possui alguns equipamentos como chuveiro elétrico, torneira elétrica, geladeira, uma máquina de lavar roupa na área de serviço, e demais pontos de iluminação e tomadas.
Com essas informações, faremos o levantamento das cargas previstas nesta instalação, através potências atribuídas para o correto dimensionamento dos circuitos elétricos na residência.
Circuito de tomadas de uso específico
Alguns equipamentos na nossa residência já possuem uma certa característica, que exigiram um circuito individual, são: o chuveiro elétrico, a torneira elétrica, geladeira e a máquina de lavar roupa.
Todos esses equipamentos domésticos constituem circuitos de alto consumo de energia elétrica que são fixos e/ou podem resultar em correntes superiores a 10 A, levando em consideração uma tensão de alimentação de 127 volts.
No caso da geladeira, apesar de considerada como um circuito específico, ela será ligada em uma tomada geral, porém dimensionada com suas características.
Iniciamos o preenchimento do quadro de previsão de cargas, descrevendo os cômodos da residência, área e o perímetro, e a descrição dos equipamentos específicos que serão utilizados.

Por padrão, um circuito elétrico residencial é composto por circuitos de iluminação, circuitos de tomadas, e tomadas específicas destinadas a equipamentos como um chuveiro.
Mas será que um só circuito para todas as tomadas e um só circuito para a iluminação é algo razoável? evidente que não, e é por isso que a partir de agora, iremos aplicar o critério de divisão de circuitos para iluminação e para as tomadas.
Com isso, esperamos dimensionar melhor os circuitos da residência e proporcionar também uma menor seção dos condutores utilizados, além de evitar os problemas já citados no início do artigo.
Nosso foco é na divisão de circuitos elétricos, por isso os cálculos de área e perímetro já foram realizados e apresentados na tabela acima, assim vamos agora atribuir as potências.
Circuito das tomadas de uso geral
Vamos começar atribuindo tomadas pela cozinha, copa e área de serviço, seguindo os critérios da norma, atribuímos as respectivas potências.
Se você ainda não conhece os critérios da norma, recomendo a você o artigo sobre o passo a passo como atribuir potências aos circuitos de tomadas da instalação elétrica residencial.
Na cozinha, temos 4 tomadas, sendo três tomadas de 600 VA e uma tomada de 100 VA, na copa teremos mais 4 tomadas, sendo 3 tomadas de 600 VA e uma tomada de 100 VA, e na área de serviço serão 2 tomadas com potências de 600 VA cada uma.
Agora, vamos atribuir as tomadas dos demais cômodos restantes como o banheiro, dormitórios, sala e corredor, e o que a norma fala a respeito de tomadas nos ambientes ainda não analisados.
No mesmo item 4.2.1.2.3, já citado, a NBR 5410 dispõe que em banheiros deve-se instalar, no mínimo, uma tomada junto ao lavatório, então o banheiro terá uma tomada mínima de 600 VA.
Em cada dormitório, foram colocadas 3 tomadas, cada uma delas com potência de 100 VA, e a sala ficou estabelecida com 3 tomadas seguindo os critérios da norma.
Porém, em cada dormitório e também na sala, iremos adicionar mais uma tomada, totalizando 4 tomadas em cada cômodo, para atender a uma necessidade mais próxima do futuro morador.
Este exemplo foi só para citar que, apesar da norma estabelecer uma quantidade mínima, é possível solicitar uma maior quantidade no projeto, desde de que seja discutido no projeto.
Teremos também uma tomada de 100 VA para o corredor, neste caso, deve-se instalar no mínimo uma tomada, se a área for igual ou inferior a 6 m2 e no mínimo uma tomada para cada 5 m.
Ou também em fração de perímetro se a área for superior a 6 m2, espaçadas o mais uniformemente possível, a potência a ser atribuída é de 100 VA por tomada.
Teremos então, 24 pontos de tomadas, que somadas, representam um potência total de 6900 VA das tomadas.
Dando continuidade ao preenchimento do quadro de previsão de cargas, vamos agora representar todos o pontos de tomadas dos cômodos da residência, conforme a tabela abaixo.

Agora, vamos aplicar o critério de divisão de circuitos, que estabelece um limite de 10 A ou cerca de 1270 VA por circuitos (considerando que a tensão é de 127 V).
Para facilitar ainda mais, vamos classificar as tomadas da residência em tomadas de uso social e tomadas de uso de serviço.
As tomadas de uso social serão as tomadas da sala, dormitório 1, dormitório 2, banheiro e corredor, e as tomadas de uso de serviço serão as tomadas da copa, cozinha e área de serviço.
Nas tomadas de uso social, fizemos da seguinte forma, criamos o primeiro circuito, agrupando as tomadas da sala, dormitório 1, e o corredor, e para o segundo circuito agrupamos o banheiro e o dormitório 2.
Nas tomadas de uso de serviço, também fizemos da seguinte forma, criamos dois circuitos somente para a copa, dois circuitos para a cozinha e um circuito para a área de serviço, respeitando o limite de 1270 VA de potência por circuito.
Isso significa que a partir de agora, teremos 07 novos circuitos elétricos de tomadas bem dimensionados em nossa residência.
Até aqui, finalizamos bem a divisão de circuitos elétricos das tomadas de uso geral, agora vamos analisar o circuito de iluminação.
Circuitos de iluminação
Assim como fizemos com as tomadas, é necessário também analisar como fazer a correta divisão do nosso circuito de iluminação.
Sabemos que cada cômodo ou dependência deve ser previsto no mínimo um ponto de luz fixo no teto, comandado por um interruptor de parede.
Mas o que diz a norma NBR 5410 sobre a correta divisão dos circuitos de iluminação, e como atribuir as potências consideradas seguindo as recomendações mínimas da norma.
A norma diz que no item 9.5.2.1.2 na determinação das cargas de iluminação, como alternativa à aplicação da ABNT NBR 5413, conforme prescrito na alínea a) de 4.2.1.2.2, pode ser adotado o seguinte critério:
a) em cômodos ou dependências com área igual ou inferior a 6 m2, deve ser prevista uma carga mínima de 100 VA;
b) em cômodo ou dependências com área superior a 6 m2, deve ser prevista uma carga mínima de 100 VA para os primeiros 6 m2, acrescida de 60 VA para cada aumento de 4 m2.
Se você tem dúvidas sobre os critérios da norma, recomendo você ler o artigo como elaborar um projeto elétrico passo a passo e aprender como atribuir potências aos circuitos de tomadas da instalação elétrica residencial.
Lembrando que a nossa residência possui dois dormitórios, uma sala, copa, cozinha, área de serviço, banheiro e corredor, o circuito de iluminação terá então:
Segundo a norma, teremos na sala, copa, banheiro, corredor, área de serviço e área externa, um ponto de luz no teto com potência de 100 VA em cada um.
Na cozinha, dormitório 1, dormitório 2, ambos terão um ponto de luz no teto com potência de 160 VA cada um, segundo critério aplicado pela dimensão do tamanho do cômodo.
Finalizando o preenchimento do nosso quadro de previsão de cargas, vamos agora representar todas as cargas dos cômodos, nos pontos de iluminação, tomadas e tomadas de uso específicas que serão usadas em nossa residência.
Após finalizar a atribuição de potências, teremos 09 pontos de luz, que somados, representam um potência total de 1080 VA.
Aplicando novamente o critério de divisão de circuitos da norma, que estabelece um limite de 10 A ou cerca de 1270 VA por circuitos (considerando que a tensão é de 127 V), iremos dividir os circuitos.
Há um ponto importante que gostaria de destacar, neste caso a potência total dos pontos de luz é inferior ao limite especificado pela norma, e não seria necessário aplicar nenhum critério de divisão de circuitos.
Porém, a norma solicita que mesmo os circuitos de iluminação também sejam divididos se possível entre circuitos sociais e de serviços.
Tendo em vista as questões de ordem prática, optou-se no exemplo em dividir a iluminação em duas partes, sendo a iluminação social e a iluminação de serviço.
Neste caso fizemos da seguinte forma, criamos o circuito de iluminação social, agrupando os pontos de luz da sala, dormitório 1, dormitório 2, banheiro e corredor, e outro circuito de iluminação de serviço com os circuitos da copa, cozinha, área de serviço, e área externa.
Há alguns questionamentos sobre esse assunto, pois o circuito de iluminação de serviço possuirá uma potência total muito baixa, porém seguiremos aquilo que foi estabelecido pela norma.
Finalizando nosso projeto, teremos então 12 circuitos elétricos bem dimensionados, e conforme as exigências da norma da ABNT NBR 5410 para instalações elétricas de baixa tensão, como pode ser visto no quadro de distribuição dos circuitos.
Nossa instalação ficou da seguinte forma, um circuito específico destinado a ligação do chuveiro, um circuito específico para a torneira elétrica, e um circuito específico para a máquina de lavar roupa.
Teremos também dois circuitos destinados a tomadas de uso geral na cozinha, dois circuitos de tomadas de uso geral para a copa, e um circuito para tomadas de uso geral para a área de serviço.
Um circuito também será destinado para as tomadas de uso geral para o banheiro e dormitório 2, e também um circuito de tomadas para sala, corredor e dormitório 1.
E para a parte de iluminação da nossa residência, dividimos a nossa instalação em dois circuitos, sendo eles, um circuito social e um circuito para a área de serviço.
Conclusão: o que realmente aprendemos com a correta divisão de circuitos elétricos residenciais

Neste artigo nós aprendemos a importância de se realizar uma correta divisão dos circuitos elétricos em uma residência.
É muito importante que todo projetista saiba fazer corretamente, e todo eletricista saiba aplicar a correta divisão da instalação dos circuitos.
A divisão da instalação deve ser bem realizada, conforme as exigências estabelecidas pela norma, evitando problemas como mau dimensionamento, queda de tensão até incêndios em instalações irregulares.
Fizemos a previsão de cargas nos circuitos de iluminação, tomadas e tomadas de uso específico, conforme a descrição dos equipamentos básicos usados na residência.
Há muitos equipamentos que precisam ser representados no projeto elétrico, caso haja alguma dúvida sobre simbologia elétrica, nós fizemos um artigo explicando cada um dos símbolos usados em projetos elétricos.
Posteriormente, aplicamos a divisão de circuitos elétricos nos circuitos de iluminação, criando dois novos circuitos de iluminação social e de serviço, sete novos circuitos de tomadas de uso geral e três circuitos de tomadas de uso específicas.
Finalizamos o processo de divisão dos circuitos, e resumindo todas as informações da instalação elétrica, com o preenchimento do quadro de distribuição de circuitos.
E se você quiser aprender mais sobre projetos elétricos, não deixe de curtir a nossa página no Facebook, lá nós compartilhamos várias dicas para ajudar você no seu aprendizado.



